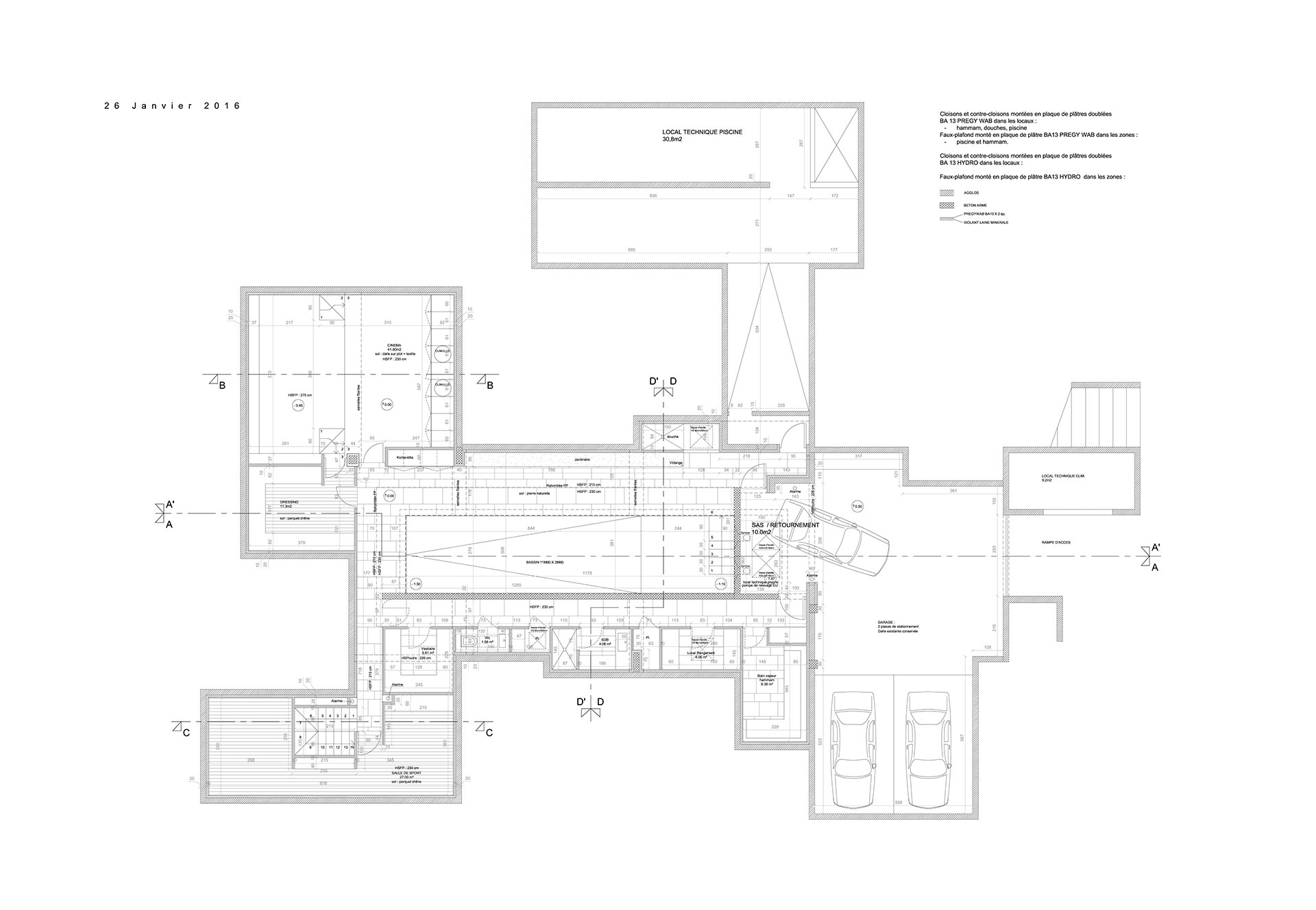
PISCINE INTERIEURE - MARSEILLE (13000)

Ce client souhaitait réaménager le sous-sol de sa villa
suivant le programme suivant :
– une salle de sport
– une salle de home cinéma
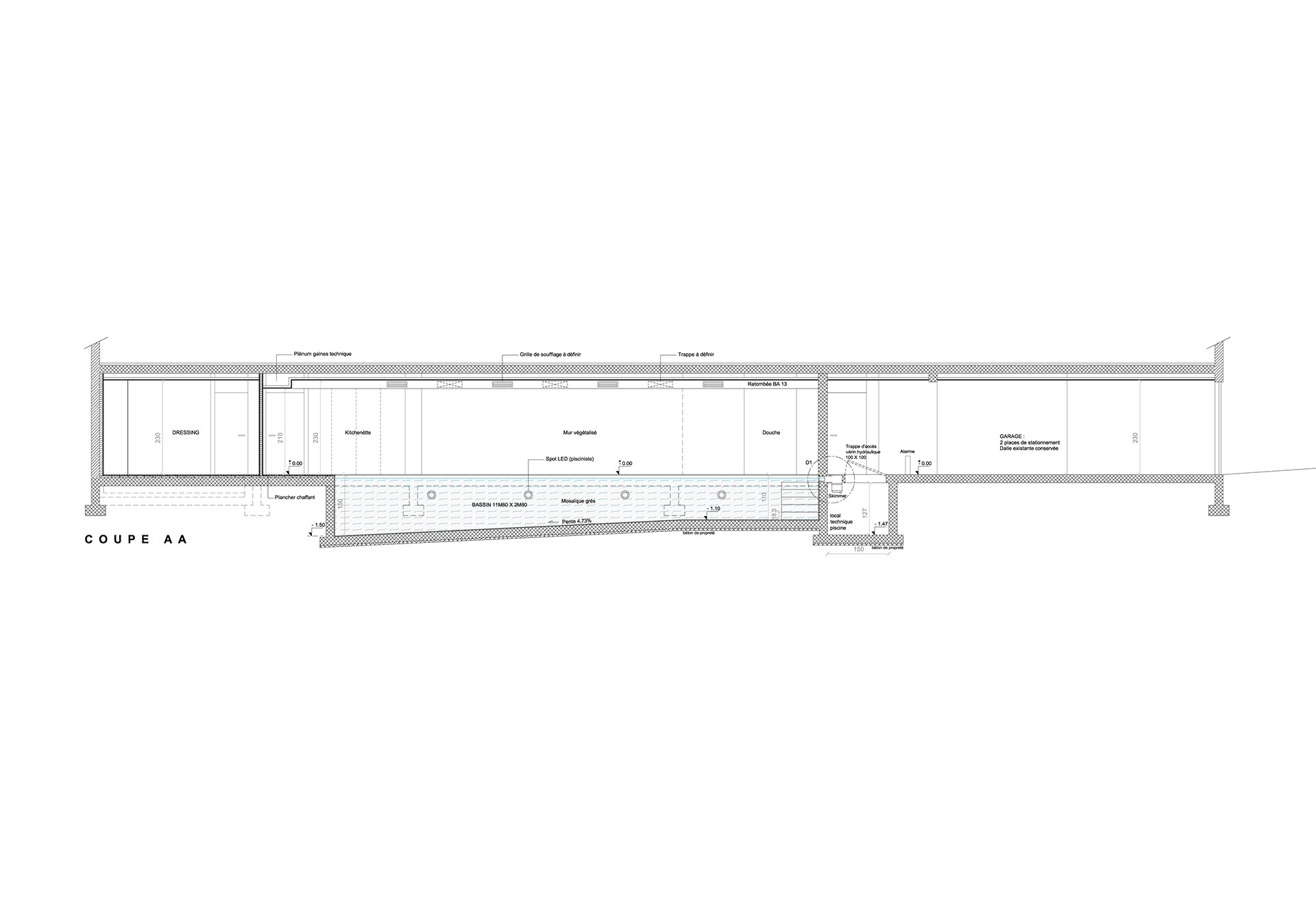
– une piscine
– un sauna
– des locaux de services (vestiaires, WC, douche)
L’élément fondateur du projet est un mur en béton brut formant une équerre, dessiné de telle manière qu’il protège la zone piscine du garage, et défini clairement les pièces de services secondaires des pièces principales.